松本市 賃貸店舗・事務所

松本市 賃貸店舗・事務所

お問い合わせ番号:f11007-146578
賃貸店舗・事務所
松本市梓川倭550-1
新村駅 ( 徒歩 34分 )
賃料 22.77万円(税別)
(坪単価:1.14万円)
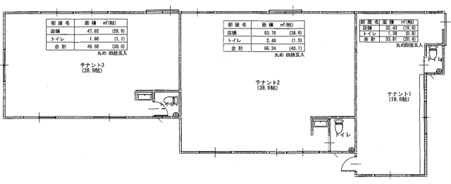
2025年8月新築です。分割可能なので、ご予算や業種に応じてご相談ください。

お客様駐車場は無料ですが、従業員用駐車場は別借りになります(年間30,000円くらい)
管理費 -
保証金
解約引
-
-
敷金
礼金
1,366,200円
-
建物/専有
面積
66.24m2
(20.03坪)
土地面積 - 築年月 2025年8月
(令和7年8月)
駐車場 所在階 1階 地上階数
地下階数
1階
-
構造 木造
用途地域
バルコニー
現況 未完成
入居/引渡 期日指定 
引渡年月 2025年09月上旬
契約期間 3年
取引 仲介
物件登録日 2025年7月3日
情報更新日 2025年12月11日
残り1区画です。(他の2区画は飲食店・美容サロンの。)

松本市 賃貸店舗・事務所の特徴・設備


松本市 賃貸店舗・事務所 周辺地図

松本市 賃貸店舗・事務所 のことならお気軽にご相談ください。
エイブルネットワーク松本駅前店
TEL:0263-37-6155
営業時間:10:00-18:00
定休日 :毎週火曜日(年末年始、GW、お盆休業有り)
メールでのお問い合わせ

お電話の場合は「テナントショップを見ました。物件番号は < f11007-146578 > です」と伝えていただくとスムーズにお応えできます。

  • 借りる
  • テナント・貸店舗を探す
  • オフィス・事務所を探す
  • 倉庫・工場を探す
  • 貸土地・借地を探す
  • 居抜き物件
  • 地域で探す
  • 買う
  • 売買物件を探す
  • 依頼する
  • 新着物件!未公開物件!地元に詳しい!
  • 物件リクエスト
検索する
スペース区切りの複合語句検索はできません

  • スマホで物件検索
  • 実績紹介
  • 物件管理
  • 会社概要・アクセス
  • エイブルネットワーク 株式会社センデン