松本市 賃貸店舗・事務所

YAMATO第2ビル

お問い合わせ番号:f11009-146766
賃貸店舗・事務所
松本市梓川倭550-1
新村駅 ( 徒歩 34分 )
賃料 22.77万円(税別)
(坪単価:1.14万円)
2025年8月完成予定です。
・更新事務手数料27,500円(税込)
・保証会社初回保証料:月額保証対象金額の100%
・更新保証料:1年毎12,000円
・決済手数料:330円(税込)
管理費 -
保証金
解約引
-
-
敷金
礼金
1,366,200円
-
建物/専有
面積
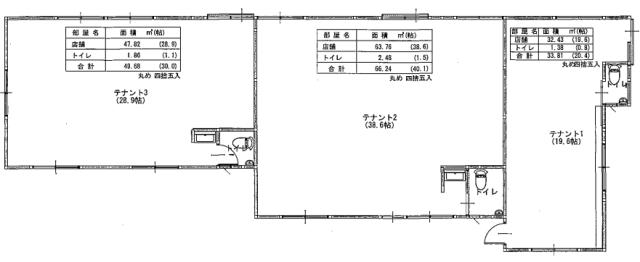
66.24m2
(20.03坪)
土地面積 - 築年月 2025年8月
(令和7年8月)
駐車場 所在階 1階 地上階数
地下階数
1階
-
構造 木造
用途地域
バルコニー
現況 未完成
入居/引渡 期日指定 
引渡年月 2025年09月上旬
契約期間 3年
取引 仲介
物件登録日 2025年7月5日
情報更新日 2025年9月29日
お客様駐車場は無料ですが、従業員用駐車場は別借りになります。(年間30,000円くらい)
残り1区画です。(他の2区画は飲食店の入居が決まっています。)

YAMATO第2ビルの特徴・設備


YAMATO第2ビル 周辺地図

YAMATO第2ビル のことならお気軽にご相談ください。
エイブルネットワーク松本店
TEL:0263-29-1717
営業時間:10:00-18:00
定休日 :無休(12/28~1/3と1/13は店休日)
メールでのお問い合わせ

お電話の場合は「テナントショップを見ました。物件番号は < f11009-146766 > です」と伝えていただくとスムーズにお応えできます。

  • 借りる
  • テナント・貸店舗を探す
  • オフィス・事務所を探す
  • 倉庫・工場を探す
  • 貸土地・借地を探す
  • 居抜き物件
  • 地域で探す
  • 買う
  • 売買物件を探す
  • 依頼する
  • 新着物件!未公開物件!地元に詳しい!
  • 物件リクエスト
検索する
スペース区切りの複合語句検索はできません

  • スマホで物件検索
  • 実績紹介
  • 物件管理
  • 会社概要・アクセス
  • エイブルネットワーク 株式会社センデン